Działka na sprzedaż Kamień Pomorski (gw), Połchowo

4716.00 m²
69,97 zł/m2
PKN-GS-139
Oblicz ratę kredytu

330 000 zł

Działka na sprzedaż

Szczegóły oferty

Symbol oferty PKN-GS-139
Powierzchnia 4 716,00 m²
Przeznaczenie działki budowlana, rekreacyjna
Standard
Wymiary działki 130x130 m
Zagosp. działki niezagospodarowana
Ukształtowanie działki płaska
Kształt działki trójkąt
Ogrodzenie działki brak
Gaz brak
Woda brak
Dojazd asfalt
Otoczenie jezioro
Położenie poza miastem
Prąd w ulicy
Kanalizacja brak
Bogumiła Ambroziak

Bogumiła Ambroziak

Manager
Nr licencji: 9850

Napisz wiadomość 73 Ofert

Opis nieruchomości

Działka o powierzchni 4716m2 z wydanymi warunkami zabudowy pod pensjonat.
Dodatkowo działki o powierzchni od 1250m2 w kompleksie działek z wydanymi warunkami zabudowy lub objętych MPZP oraz rolnych. MPZP lub warunki zabudowy mówią o przeznaczeniu działek pod domy rekreacyjne z możliwością całorocznego zamieszkania,  pod pensjonaty o wysokości do 3 kondygnacji i usługi związane z turystyką.

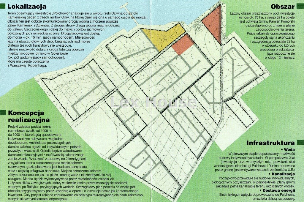
Lokalizacja:
Teren umiejscowiony jest u wylotu rzeki Dziwna do Zatoki Kamieńskiej (jeden z 3 ujść Odry do Bałtyku). Obszar dobrze skomunikowany wodnie z morzem i Zalewem Szczecińskim, drogowo- z drogą krajową do Kamienia Pomorskiego oraz w pobliżu budowanej S3 do Świnoujścia. Teren leży na uboczu głównych dróg prowadzących do morza co gwarantuje spokój, ale na tyle blisko aby można było łatwo dojechać do kompleksu działek drogą asfaltową.

Koncepcja realizacji:
w sąsiedztwie działki mogą być podzielone na 1200 do 3000m2 dla indywidualnych klientów lub większe dla developerów (indywidualne warunki negocjacji). Osiedle będzie zabudowane domkami rekreacyjnymi z możliwością zamieszkiwania całorocznego, pensjonatami, częścią usługowo-handlową, mariną z pirsami do cumowania łodzi i ogólnodostępną plażą. Marina ma być wykorzystywana przez właścicieli z osiedla oraz użytkowników tras wodnych. Obecnie są już budynki pensjonatowe działające.

Infrastruktura:
W pierwszym etapie dopuszczona jest budowa własnych studni oraz biologicznych oczyszczalni. W perspektywie 2 lat powstanie rurociąg wodny i kanalizacyjny obsługujące teren i okolicę budowane przez gminę ze wsparciem środków UE. Sieć niskiego napięcia jest doprowadzona do kompleksu działek (nowy transformator).

Otoczenie:
Dostęp do morza, Zatoki Kamieńskiej i Zalewu Szczecińskiego daje duże możliwości uprawiania sportów wodnych oraz innych form rekreacji. W pobliżu znajdują się 2 pełnowymiarowe pola golfowe (Kołczewo, Łukęcin), ośrodki uzdrowiskowe w Kamieniu Pomorskim, Woliński Park Narodowy i liczne miejscowości wypoczynkowe.
 Przy zakupie większych powierzchni możliwość indywidualnych negocjacji.
Wszystkie oferty na nieruchomosci-online

Lokalizacja nieruchomości

Kalkulatory

Kalkulator kredytowy

Wysokość raty

PLN
%

Kalkulator kosztów

Podatek od czynności cywilno-prawnych

Taksa notarialna
(opłata notarialna)

Wniosek o wpis do WKW

VAT od prowizji
agencji nieruchomości

Vat od taksy notarialnej
(opłaty notarialnej)

Prowizja agencji nieruchomości

Wypisy aktu notarialnego

Razem

Uwaga: mogą wystąpić dodatkowe opłaty za założenie księgi wieczystej oraz ustanowienie hipoteki.

PLN
PLN
PLN
PLN
PLN
PLN
%
PLN

Podobne oferty

Działka na sprzedaż

Kamień Pomorski (gw), Połchowo

4 801 m2 49,78 zł/m2

Manager

Proszę wprowadzić poprawne imię i nazwisko
Proszę wprowadzić poprawny numer telefonu
Proszę wprowadzić poprawny adres e-mail
Proszę zaznaczyć wymagane zgody
Rozwiąż równanie:
11 3
Niepoprawny wynik