Mieszkanie na sprzedaż Szczecin, Prawobrzeże

3 pokoje
54.70 m²
11 883,00 zł/m2
2 piętro
4KAT-MS-22475
Oblicz ratę kredytu

650 000 zł

Mieszkanie na sprzedaż

Szczegóły oferty

Symbol oferty 4KAT-MS-22475
Powierzchnia 54,70 m²
Powierzchnia użytkowa [m2] 54,70 m²
Liczba pokoi 3
Rodzaj budynku blok
Technologia budowlana pustak
Standard
Opłaty w czynszu Części wspólne, fundusz remontowy, sprzątanie, woda ciepła, wywóz nieczystości, wywóz śmieci
Opłaty wg liczników CO, prąd
Piętro 2
Liczba pięter w budynku 2
Garaż przy budynku
Stan lokalu bardzo dobry
Mies. czynsz admin. 550 PLN
Okna DREWNIANE NOWY TYP
Instalacje dobre
Balkon jest
Liczba balkonów 1
Bogumiła Ambroziak

Bogumiła Ambroziak

Manager
Nr licencji: 9850

Napisz wiadomość 96 Ofert

Opis nieruchomości

Dwupoziomowe Mieszkanie na prawobrzeżu blisko lasu!

Na sprzedaż wyjątkowe 3-pokojowe mieszkanie o powierzchni użytkowej 54,7 m² (całkowita około 100 m²), położone na 2. piętrze w budynku z 2009 roku. To idealna propozycja dla osób ceniących sobie komfort, przestrzeń oraz bliskość natury - mieszkanie znajduje się tuż obok lasu!

Układ i Wyposażenie Mieszkania

Mieszkanie jest doskonale zaprojektowane, co sprawia, że jest niezwykle funkcjonalne i wygodne. W skład lokalu wchodzą:

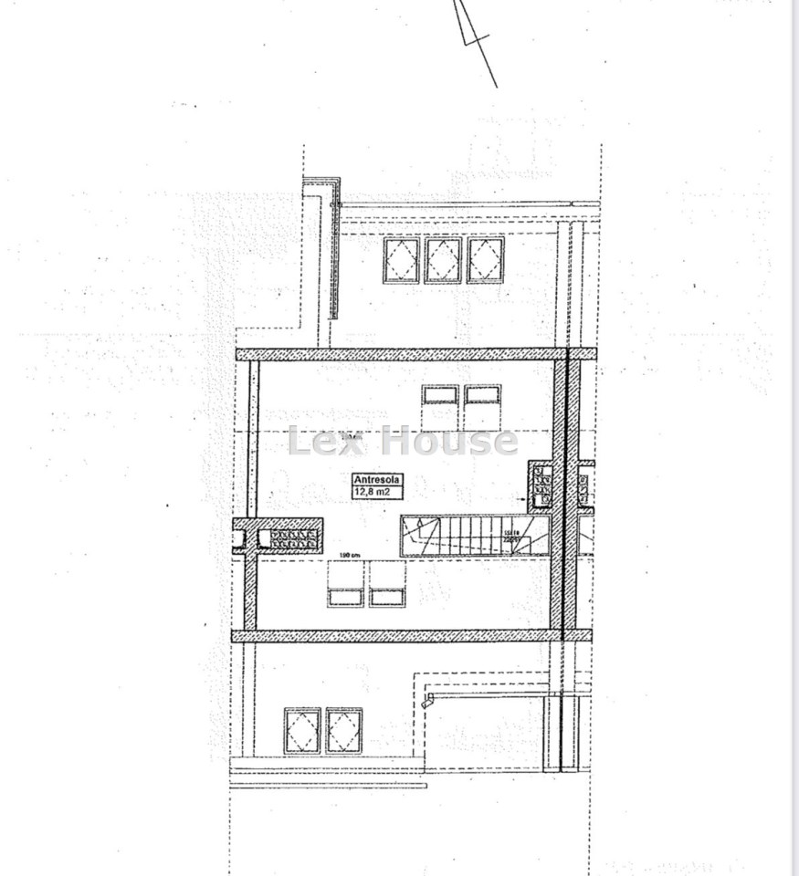
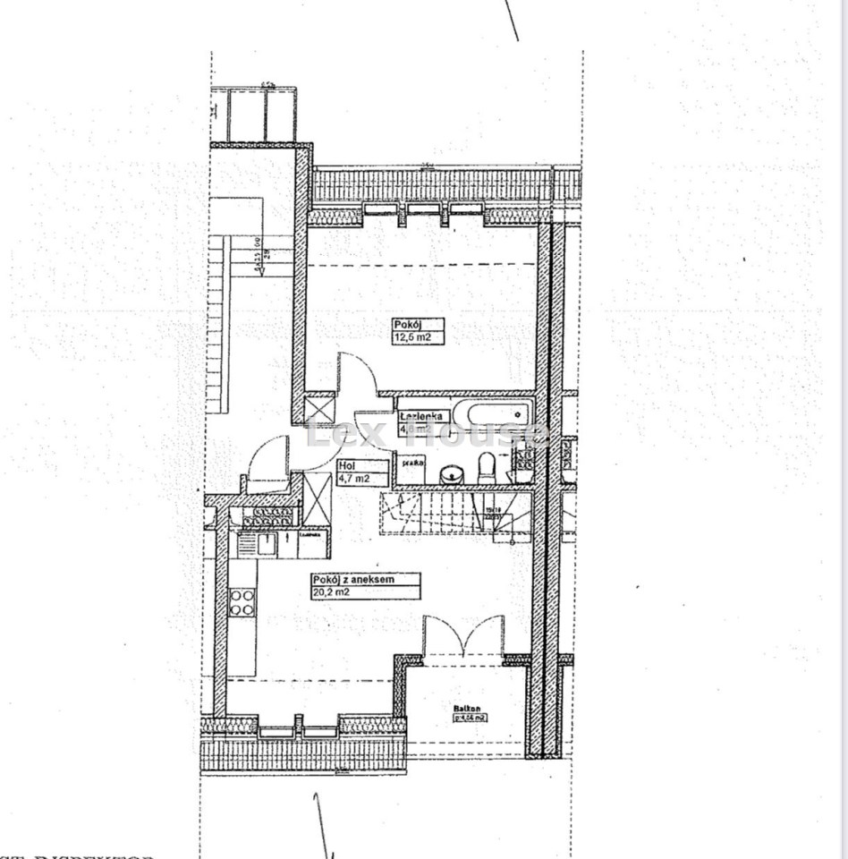
  • Salon z aneksem kuchennym (20,02 m²) - Przestronny salon z wyjściem na balkon (4,56 m²), który nie jest wliczony do powierzchni użytkowej lokalu. W salonie znajduje się nowoczesna zabudowa kuchenna wraz ze sprzętem AGD.
  • Sypialnia (12,5 m²) - Komfortowa sypialnia, idealna na wypoczynek po długim dniu.
  • Łazienka z wanną i WC (4,6 m²) - Elegancko urządzona łazienka wyposażona w wannę.
  • Przedpokój (4,7 m²) - Funkcjonalny przedpokój z miejscem na szafę.
  • Antresola z garderobą (12,8 m²) - Dodatkowa przestrzeń, która może pełnić funkcję dodatkowej sypialni, biura czy przestrzeni rekreacyjnej. Garderoba zapewnia mnóstwo miejsca do przechowywania.

W cenie mieszkania pozostaje zabudowa kuchni ze sprzętem AGD, wyposażenie łazienki oraz wszystkie stałe zabudowy. Wyposażenie ruchome może zostać przedmiotem indywidualnych ustaleń.

Niskie Koszty Utrzymania

Czynsz wynosi około 550 zł przy 4 osobach i obejmuje zaliczki na wodę, fundusz remontowy, koszty eksploatacyjne, utrzymanie czystości, ścieki oraz wywóz śmieci. Pozostałe media są rozliczane według zużycia. Mieszkanie jest ogrzewane z SEC.

Atrakcyjna Lokalizacja

Mieszkanie znajduje się w spokojnej, ogrodzonej okolicy, z dostępem do placu zabaw oraz ogólnodostępnymi miejscami parkingowymi.

  • Bliskość lasu czyni tę ofertę idealną dla osób lubiących spacery oraz dla właścicieli zwierząt.
  • W pobliżu znajdują się szkoła, sklepy, jezioro z miejską plażą oraz przystanki komunikacji miejskiej (ok. 50 m). Szybki dojazd do autostrady (ok. 2 min samochodem) zapewnia doskonałą komunikację z centrum miasta.
  • W niedalekiej odległości od mieszkania (10 min. autem) znajduje się centrum handlowe Outlet Park.

Zapraszamy do kontaktu i obejrzenia tego wyjątkowego mieszkania!


Prezentacja nieruchomości przy udziale agenta nieruchomości wiąże się z obowiązkiem podania swoich danych osobowych a także wyrażeniem pisemnej zgody na wykonanie usługi pośrednictwa w zakupie nieruchomości.

Kalkulatory

Kalkulator kredytowy

Wysokość raty

PLN
%

Kalkulator kosztów

Podatek od czynności cywilno-prawnych

Taksa notarialna
(opłata notarialna)

Wniosek o wpis do WKW

VAT od prowizji
agencji nieruchomości

Vat od taksy notarialnej
(opłaty notarialnej)

Prowizja agencji nieruchomości

Wypisy aktu notarialnego

Razem

Uwaga: mogą wystąpić dodatkowe opłaty za założenie księgi wieczystej oraz ustanowienie hipoteki.

PLN
PLN
PLN
PLN
PLN
PLN
%
PLN

Podobne oferty

Mieszkanie na sprzedaż

Szczecin, Prawobrzeże

3 pokoje 54 m2 9 343,93 zł/m2

Manager

Proszę wprowadzić poprawne imię i nazwisko
Proszę wprowadzić poprawny numer telefonu
Proszę wprowadzić poprawny adres e-mail
Proszę zaznaczyć wymagane zgody
Rozwiąż równanie:
15 6
Niepoprawny wynik