Mieszkanie na sprzedaż Szczecin, Bezrzecze

4 pokoje
71.36 m²
10 916,48 zł/m2
parter
LH1-MS-40862
Oblicz ratę kredytu

779 000 zł

Mieszkanie na sprzedaż

Szczegóły oferty

Symbol oferty LH1-MS-40862
Powierzchnia 71,36 m²
Powierzchnia użytkowa [m2] 71,36 m²
Liczba pokoi 4
Liczba sypialni 3
Rodzaj budynku bliźniak
Technologia budowlana silikat
Standard
Opłaty w czynszu -
Opłaty wg liczników gaz, prąd, woda
Piętro parter
Liczba pięter w budynku 1
Garaż brak
Stan lokalu deweloperski
Okna PCV 3 szyby, ciepły montaż
Instalacje ELEKTRYCZNA, GAZOWA, TELEFONICZNA, INTERNETOWA
Liczba tarasów 1
Rok budowy 2024
Gaz jest
Woda piecyk gazowy
Dojazd UTWARDZONA
Otoczenie zabudowa wielorodzinna
Ogrzewanie C.O. GAZOWE, C.O. PODŁOGOWE GAZOWE
Tarasy taras
Usytuowanie szczytowe
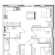
Pomieszczenia
Powierzchnia pokoi 9,86, 8,57, 19,08, 9,56 m2
Typ kuchni aneks kuchenny połączony z jadalnią i salonem
Rodzaj kuchni aneks kuchenny
Powierzchnia kuchni 9,6 m2
Typ łazienki razem z wc
Powierzchnia łazienki [m2] 5,6 m2
Liczba przedpokoi 2
Powierzchnia przedpokoi 9 m2
Nikola Trochonowicz

Nikola Trochonowicz

Makler

Napisz wiadomość 90 Ofert

Opis nieruchomości

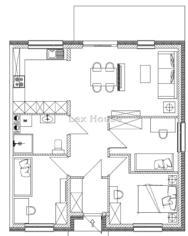
BEZCZYNSZOWE MIESZKANIE W SERCU BEZRZECZA | PARTER | OGRÓDEK | 2 MIEJSCA PARKINGOWE | STAN DEWELOPERSKI

Szukasz nowoczesnego, komfortowego mieszkania w spokojnej okolicy, ale blisko miasta? To oferta, na którą czekałeś!

Nowe, bezczynszowe mieszkanie w kameralnej zabudowie bliźniaczej przy ul. Wroniej i Różany Zakątek w Bezrzeczu. Idealne dla rodzin, osób starszych i niepełnosprawnych – wszystko zaprojektowane z myślą o wygodzie i funkcjonalności.
 

Wyobraź sobie poranek na tarasie, gdzie delektujesz się kawą w promieniach słońca. Dzieci bawią się w ogródku, a Ty cieszysz się spokojem tej kameralnej okolicy, jednocześnie mając wszystko w zasięgu ręki – sklepy, szkoły, przedszkola i szybki dojazd do Szczecina.

To mieszkanie zostało zaprojektowane z myślą o Tobieprzestronny salon, funkcjonalna kuchnia i trzy wygodne sypialnie tworzą idealne miejsce do życia. Nowoczesne technologie, niskie koszty eksploatacji i komfortowe warunki sprawiają, że to mieszkanie to doskonała inwestycja na lata!

Powierzchnia użytkowa: 71,36 m²
Salon z jadalnią – 19,08 m²
Kuchnia – 9,60 m²
Trzy sypialnie – 9,86 m², 9,56 m², 8,57 m²
Łazienka – 5,61 m²
Wiatrołap – 3,23 m²
Komunikacja – 5,85 m²



INSTALACJE I TECHNOLOGIE

  • Ogrzewanie podłogowe + kocioł gazowy – komfortowe i ekonomiczne rozwiązanie
  • Rekuperacja – odzysk ciepła, niższe rachunki, lepsza jakość powietrza
  • Woda i kanalizacja miejska – bez konieczności obsługi dodatkowych systemów
  • Zasilanie kablem ziemnym – nowoczesna i bezpieczna infrastruktura

PREZENTACJA MIESZKANIA W TOWARZYSTWIE ARCHITEKTA WNĘTRZ!
Masz okazję zobaczyć, jak może wyglądać Twoje przyszłe mieszkanie i omówić możliwości aranżacji!

Umów się już dziś i zarezerwuj swoje wymarzone mieszkanie!
Pomagamy w uzyskaniu kredytu – skontaktuj się z nami i sprawdź swoją zdolność! 

Kalkulatory

Kalkulator kredytowy

Wysokość raty

PLN
%

Kalkulator kosztów

Taksa notarialna
(opłata notarialna)

Wniosek o wpis do WKW

VAT od prowizji
agencji nieruchomości

Vat od taksy notarialnej
(opłaty notarialnej)

Prowizja agencji nieruchomości

Wypisy aktu notarialnego

Razem

Uwaga: mogą wystąpić dodatkowe opłaty za założenie księgi wieczystej oraz ustanowienie hipoteki.

PLN
PLN
PLN
PLN
PLN
%
PLN

Podobne oferty

Oferta na wyłączność

Mieszkanie na sprzedaż

Szczecin, Bezrzecze

4 pokoje 72 m2 10 793,96 zł/m2
Oferta na wyłączność
Oferta na wyłączność

Mieszkanie na sprzedaż

sZCZECIN, BEZRZECZE

4 pokoje 72 m2 10 793,96 zł/m2
Oferta na wyłączność

Mieszkanie na sprzedaż

Szczecin, Bezrzecze

4 pokoje 71 m2 10 916,48 zł/m2
Oferta specjalna

Mieszkanie na sprzedaż

Szczecin, Bezrzecze

3 pokoje 72 m2 11 891,52 zł/m2
Oferta specjalna

Makler

Proszę wprowadzić poprawne imię i nazwisko
Proszę wprowadzić poprawny numer telefonu
Proszę wprowadzić poprawny adres e-mail
Proszę zaznaczyć wymagane zgody
Rozwiąż równanie:
27 4
Niepoprawny wynik