Obiekt na wynajem Szczecin, Niemierzyn

847.78 m²
70,77 zł/m2
MTM-BW-6761

60 000 zł

Obiekt na wynajem

Szczegóły oferty

Symbol oferty MTM-BW-6761
Powierzchnia 847,78 m²
Powierzchnia działki [m2] 2 515 m²
Rodzaj obiektu biurowiec
Standard
Typ kaucji do uzgodnienia
Winda tak
Liczba wind 1
Pomieszczenia
Liczba pomieszczeń biurowych 15
Liczba pomieszczeń socjalnych 4
Liczba pomieszczeń sanitarnych 4
Bogumiła Ambroziak

Bogumiła Ambroziak

Manager
Nr licencji: 9850

Napisz wiadomość 106 Ofert

Opis nieruchomości

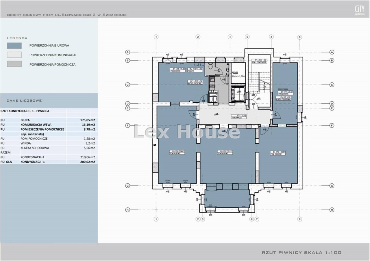
Mamy przyjemność zaprezentować Państwu ofertę wynajmu unikatowej nieruchomości - reprezentacyjnego budynku znanego pod nazwą „Willa Nellego”. Pierwotnie budynek został wybudowany pod koniec XIX wieku w stylu eklektycznym, a w 2020 roku został gruntownie zrewitalizowany, zgodnie z wytycznym konserwatora zabytków, z zachowaniem najnowszych standardów budowy nowoczesnych budynków biurowych, dzięki temu na 4 kondygnacjach uzyskano powierzchnię najmu ok. 760 m2. Budynek jest wyposażony w nowe instalacje oraz w windę, która obsługuje każdy poziom od -1 do +2, dzięki temu jest dostosowany dla osób niepełnosprawnych.

Na każdym z 4 poziomów do dyspozycji użytkowników przygotowano funkcjonalne powierzchnie biurowe oraz socjalne, które dzięki wysokim pomieszczeniom i dużym oknom zapewniają  odpowiednią ilość światła dziennego i poczucie przestrzeni. 

Nieruchomość składa się  z 3 działek o łącznej powierzchni 2.515 m2, które pięknie zagospodarowano i urządzono naziemny parking na 15 samochodów, parking dla rowerów i reprezentacyjny ogród. – forma,  własności: własność.
Jest to nieruchomość idealna na prestiżową działalność lub siedzibę firmy, zakres renowacji i dbałość o detale wyróżnia tą inwestycję na szczecińskim rynku nieruchomości.

Wyróżnia ją również bardzo atrakcyjna lokalizacja w pobliżu głównych szlaków komunikacyjnych i Parku Kasprowicza, ulubionego miejsca szczecinian. Takie otoczenie spotka się z entuzjazmem pracowników i stworzy idealne miejsce pracy.

Istnieje możliwość wynajmu całego obiektu - czynsz najmu 15 Euro/m2 netto, pozostałe parametry do uzgodnienia.

Polecamy i zapraszamy do prezentacji.

Podana cena jest ceną netto, należy doliczyć 23% VAT.

Manager

Proszę wprowadzić poprawne imię i nazwisko
Proszę wprowadzić poprawny numer telefonu
Proszę wprowadzić poprawny adres e-mail
Proszę zaznaczyć wymagane zgody
Rozwiąż równanie:
26 1
Niepoprawny wynik