Lokal na wynajem Szczecin, Niebuszewo, Księcia Barnima III Wielkiego

11 pokoi
178.95 m²
30,73 zł/m2
parter
NGK-LW-492

5 000 zł 5 500 zł
Najniższa cena z ostatnich 30 dni: 5 500 zł

nowa cena
Lokal na wynajem

Szczegóły oferty

Symbol oferty NGK-LW-492
Powierzchnia 178,95 m²
Powierzchnia użytkowa [m2] 178,95 m²
Liczba pokoi 11
Rodzaj budynku budynek wolnostojący
Kaucja zabezp. 11000
Opłaty w czynszu administracja, ogrzewanie, woda, wywóz śmieci
Opłaty wg liczników prąd
Piętro parter
Liczba pięter w budynku 1
Stan lokalu dobry
Typ kaucji dwumiesięczna
Mies. czynsz admin. 2 395 PLN
Okna PCV
Instalacje dobre
Rodzaj lokalu wielopoziomowy
Przeznaczenie lokalu handlowo-usługowy, magazynowy
Gaz brak
Woda tak
Dojazd asfalt
Otoczenie zabudowa wielorodzinna
Ogrzewanie centralne
Alarm tak
Usytuowanie dwustronne
Położenie lokalu ruchliwa ulica
Witryna wystawowa duża
Wejście od ulicy
Bogumiła Ambroziak

Bogumiła Ambroziak

Manager
Nr licencji: 9850

Napisz wiadomość 106 Ofert

Opis nieruchomości

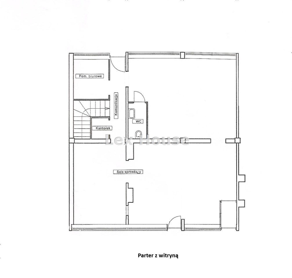
Do wynajęcia duży lokal użytkowy, dwupoziomowy (parter z witryną oraz pomieszczenia piwniczne) położony przy ul. Księcia Barnima III Wielkiego.
Lokal położony jest w budynku handlowo-usługowym, posiada trzy wejścia: dwa od frontu, trzecie z tyłu budynku dla dostawców. Lokal składa się z dwunastu pomieszczeń:

Parter: sala główna z witryną, magazyn, biuro, kantorek oraz wc. Łączna powierzchnia parteru 97,65 m2.
Piwnica: cztery pomieszczenia magazynowe, zaplecze socjalne z kuchnią i pralnią oraz wc. Łączna powierzchnia piwnic 81,30 zł.

Ogrzewanie z sieci miejskiej, ciepła woda - podgrzewacz elektryczny.
 
Opłaty:
- czynsz najmu 5 500,00 zł netto (do czynszu najmu należy doliczyć podatek VAT w stawce 23%),
- czynsz do spółdzielni 2 394,90 zł netto (do czynszu najmu należy doliczyć podatek VAT w stawkach: 8% woda i kanalizacja, 23% eksploatacja, ogrzewanie oraz pozostałe składowe czynszu),
- prąd wg zużycia.
- kaucja dwumiesięczna.

Obecnie w lokalu prowadzona jest działalność związana z sprzedażą artykułów spożywczych i monopolowych.

Możliwość wynajęcia części lokalu: 48,95 m2 - parter z witryną i dodatkowym wejściem lub 130 m2 - parter z witryną, dodatkowym wejściem oraz piwnicą).

Polecam.

Lokalizacja nieruchomości

Manager

Proszę wprowadzić poprawne imię i nazwisko
Proszę wprowadzić poprawny numer telefonu
Proszę wprowadzić poprawny adres e-mail
Proszę zaznaczyć wymagane zgody
Rozwiąż równanie:
19 7
Niepoprawny wynik